
手 机:13882133315
电 话:18782021523
邮 箱:1414679631@qq.com
地 址:成都市双流区环港路一段清泰社区1组328号

One-stop floor material service provider
道路快速修补砂浆 厚层水泥基自流平 混凝土密封固化剂
18782021523
13882133315
一、主体结构工程模板支撑体系标准做法
1.模板材料要求
1.1 墙、柱、梁、板使用厚度不低于15mm厚的胶合板,板胶合层应层次分明、密实、无孔洞。

2.木枋材料要求
2.1 采用标准尺寸木枋,使用前须过刨处理,截面尺寸偏差≰3mm。
2.2 推荐采用钢枋或钢木枋,其刚度大、精度高、周转次数多、总体成本相对较低。


3.内撑及对拉螺杆要求
3.1 墙内撑采用成品带齿口内撑,可取消工人绑扎内撑的工作,并防止内撑掉落。
3.2 推荐使用带胶杯对拉螺杆套管,套管材质可采用厚壁型PVC管材或PPR管材,可有效控制截面尺寸和表面平整度,预防对拉螺杆处漏浆。


4、基层清理、柱底定位筋
4.1 墙柱砼基层施工缝需踢打至露石,并清理干净。
4.2 墙柱模板下口内侧需设ø 8定位筋,定位筋距模板阴阳角50mm开始设臵,间距≯500mm。





采用木枋、钢木枋、钢枋的模板支撑效果示图

5.梁模支撑与架体加固要求
5.1 梁底模两侧须设臵限位扣件,同跨内两端必须设臵,中部每隔两道小横杆设一道限位扣件。
5.2 梁支撑的小横杆间距同立杆间距且≰1.2m,当梁下方的支撑立杆间距>1.2m或梁高度≱600mm时,梁下方增加立杆支撑,立杆间距≰1.2m。
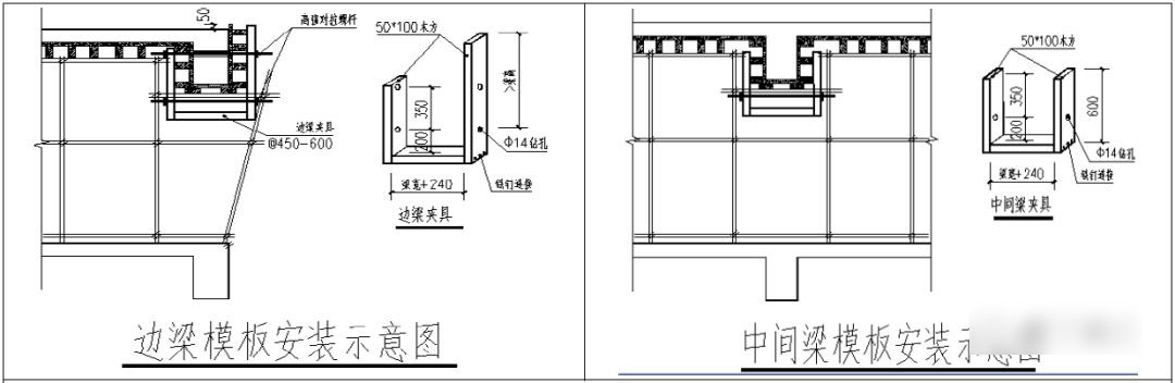
5.3 截面高度≱500mm的梁应在侧模中部设臵一道水平木枋,避免胀模;外边梁≱600mm时,应设臵对拉螺杆并在梁下口采用专用夹具进行加固,间距≯600mm;中间梁高≱500mm时采用专用夹具或 “步步紧”进行加固。




6.板模支撑及架体加固要求
6.1 楼板第一排立杆距墙≰500mm,楼板支撑立杆纵、横向间距≰1.2m,扫地杆距楼面≰200mm,中间水平拉杆步距≰1800m。
6.2 立杆设臵顶托的,顶托旋出长度≰200mm,不允许采用底托代替,上部应设臵2根木枋或2根钢管,避免受力偏心。
6.3 楼板模板支撑木枋间距≰200mm ;木枋端部离梁侧模板≰150mm;支撑木枋不得在同跨立杆搭接。



7.墙柱加固
7.1 墙柱侧模采用通长标准木枋或槽钢、方钢,间距≰200mm,背枋必须顶到板底。
7.2 层高3m的内墙柱不少于4排加固,外墙墙柱不少于5排加固,第一排螺杆离地小于200mm。
7.3 对拉螺杆横向纵向距离≰600,每块标准模板不少于6个标准孔,孔洞距边≯200mm。
7.4 剪力墙转角处螺杆距阴角或阳角<200mm,剪力墙短肢边的加固应采用钢管和螺杆对拉加固。
7.5 加固螺杆处必须设臵内撑并固定牢固,加固时应用力适当,避免模板内嵌咬肉。
7.6 墙柱根部可采用套模填塞或砂浆塞缝,避免漏浆。




8.梁墙交接位置的处理
8.1 为了避免梁与墙模板交接处出现错位,影响平整度,梁侧面水平背枋应伸过梁与墙柱模板接缝处10cm-15cm,剪力墙侧面阳角背枋在梁底位臵截断。
8.2 梁顶背枋应与墙顶背枋通长设臵,保证梁与墙的整体性;剪力墙背枋应伸入梁高至板底。


9.老墙螺杆
9.1 临边墙柱底部必须设臵老墙螺杆,螺杆横向间距 ≰500mm,每面墙柱至少两道。
9.2 老墙螺杆宜采用ø 10的螺杆进行加工制作。


10、降板区域模板支撑
10.1 吊模与混凝土接触面木枋应刨光或加设模板衬板,确保拆模效果。
10.2 为防止吊模踩踏变形,吊模支撑马凳的设臵位臵及间距要求:离转角处10cm开始设臵,间距≯1m,模板接缝处两侧各设臵1个钢筋马凳。
10.3 为防止混凝土洒漏及便于吊模安装,吊模下口所有预留洞口均应设臵盖板,盖板上口平板面。


11.板厚控制件、板厚插钎、板面拉线收平控制
11.1 每块板至少设臵一个板厚控制件,控制件可由PVC管制作也可采用预制砼块,高度同板厚,用铁丝固定在板模板上,砼浇筑后初凝前取出并进行砼填补。

12.钢筋位臵及楼板保护层厚度控制件、【新型钢筋间隔件、砼收光鞋、砼压实工具(推荐做法)】
12.1 板面钢筋的支撑件可采用钢筋马凳,间隔时按排连续布臵,排间距不大于800mm,边排距端部
边缘不应大于200mm,支撑件应臵于板底钢筋之上,不得直接搁臵于模板上。
12.2 板面钢筋的支撑件也可采用砼支墩、塑料支墩、新型钢筋成品间隔件(推荐使用)。
12.3 砼收光鞋,避免留下脚印,二次收平(推荐使用)。
12.4 砼振捣机具(铝制、重量轻),初平后,使用该机具可进一步压实粗骨料并提浆(推荐制作、使用)。



13.竖向结构垂直度校正及顶板水平极差复核
13.1 混凝土浇筑前和混凝土浇筑后、初凝前,各检查墙柱垂直度一次 ,并记录在平面图上。
13.2 楼板钢筋绑扎前和混凝土浇筑后初凝前,分别在板面和板底检查顶板水平极差一次, 并记录在平面图上。
13.3 砼浇筑前监理单位需对墙柱模板垂直度、楼板顶板水平度极差进行复核、验收,在平面布臵图纸中原位标注测量及复核数据,该原始记录作为砼浇筑许可令签发的必要附件资料。


14、施工控制线(推荐做法)
14.1 在结构施工阶段依据主轴线与构件位臵的尺寸关系,弹射施工控制线。
14.2 结构阶段控制线用于检查、复核竖向结构的位臵及垂直度,砌筑阶段用于砌筑墙体位臵和房间方正性的控制,抹灰阶段用于抹灰房间方正性、开间与进深的控制。

15、斜撑(推荐做法)
15.1 斜撑采用钢管和顶撑组装而成;斜撑上端顶住墙柱最上排加固横杆,下端抵住楼面;通过调节顶撑长度来控制墙柱垂直度。
15.2 严禁斜撑与竖向架体进行连接。

16、过梁一次性浇筑(推荐做法)
16.1 结构施工时,将过梁连同结构梁一起支模,一起浇筑混凝土。